Teaching Flume Package: €50,000
Teaching Flume Package: €50,000
Perfect for teaching wave mechanics. Self-assembled kit.
Convenient to move, assemble and dismantle.
Perfect for teaching wave mechanics. Self-assembled kit.
Convenient to move, assemble and dismantle.
We offer a complete teaching flume package to best meet most needs of teaching institutes for unlimited lab work. It is low-cost, because the design and manufacturing process is repeated and refined. Versatile because it is modular and movable.
THE PACKAGE
THE PACKAGE
A range of flume modules that can be combined to create the widest variety of teaching aids to demonstrate Fluid Mechanic principles.
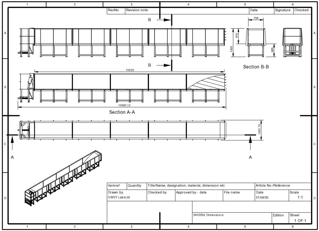
The equipment is portable and easily assembled in a classroom. Fully glazed, parallel walls with a cross section of 800mm x 800mm and any working length.
Flume modules available include: wave makers, wave absorbers and recirculation inlet/outlets. A simple but robust watertight joint is formed by bolted flange and solid silicone rod gasket.
The kit of parts are packed and shipped safely in crates with clear and simple instructions to assemble and commission a complete teaching tank setup. An example setup is shown here, might comprise three tank modules, two recirculation modules, a wave maker, absorber and end caps.
Features:
Section: 800mm wide, 800mm wall height
External: 950mm wide, 1.5m high, 8.1m long (or any length)
Delivery: by 20ft container to your location for self-assembly
Scale: 1:300 scale nominal
Wave maker: dry-back, hinged paddle:
• Peak; 0.2m Hmax, 0.5sec Tmin
• Dimensions; 800mm wide, 350mm stroke, 600mm typical deep.
• Actuator; electrical linear planetary gear screw (Exclar)
• Spectra; regular and irregular waves (e.g. Bretschneider, Pierson-Moskowitz, Jonswap) with OMEY's free wave maker software
• Materials; stainless steel space frame paddle, rolling gusset
• Control; closed loop
• Power; single phase 240v 13A or 110v
DESIGN
A single-design range of modules to best meet most needs of teaching fluid mechanics. It is low-cost, because the design and manufacturing process is repeated and refined. Versatile because it is modular and movable.
CONVENIENCE
Flume modules are built to order so they can be packed safely, and compactly, in a 20ft shipping container. Once on site the modules can be unpacked and assembled by hand.
Detailed assembly instructions and user manuals are supplied with the teaching flume. The wave maker requires a conventional single phase 240v AC or single phase 110v AC power supply.
SCALE & DIMENSIONS
The teaching flume dimensions are selected for the best use of standard materials, manufacturing and transport constraints, while still meeting most teaching flume needs.
The design is nominally pitched in the range of 1:300th scale but can be varied up or down with working width up to 1000mm, and nominal working depth up to 1100mm. Being modular, any tank length can be setup.
Material
The teaching flume modular design uses material combinations that are optimal for durability, longevity and cost.
To create a robust, movable product, the standard flume modules are constructed from high grade 2mm steel, continuous welded. Metal is coated with a high grade marine epoxy coating (BARIL SteelKote) appropriate for total emersion and versatile enough to allow damage repair on-site.
For clarity of visualisation OMEY tanks incorporates glass or synthetic windows (up to 800mm high) for the full length of the tank, on both walls, as standard. The glass is toughened to resist abrasion for clarity of viewing and measurement (laser, photographic).
REUSABLE
Flume modules are joined by a simple bolted flange and seal. OMEY uses pure silicone rod gripped between flange faces to form a reliable, and reusable seal. Modules can be unbolted, moved and reassembled in a matter of hours, any number of times
TESTIMONIAL
The OMEY teaching wave flume was shipped to us quickly and it was very easy to set it up. Four undergraduate students assembled the tank in 1 day, and the first class experiments were conducted in a week from the package arrival. The wave flume is a very nice addition to our teaching laboratory and it has been functioning well. We are happy with it.
Masoud Hayatdavoodi, Instructional Assistant Professor, Ocean Engineering Department,
Texas A&M Univeristy
The Department of Ocean Engineering (OCEN) at Texas A&M combines in-class engineering instruction and field-based instruction in addition to a large research portfolio. The Galveston campus, which offers unique field-testing facilities, had an existing in-house teaching flume. Its wave maker was a simple paddle on a crank generating monochromatic waves. They wanted to add the ability to demonstrate irregular wave so they contacted OMEY.
The existing teaching flume was also approaching end-of-life, having endured many years of experiment and repair. So, while evaluating OMEY’s range of teaching flume products, Texas A&M decided to procure a complete teaching flume package.
Texas A&M placed their order, and OMEY Labs Ltd shipped a complete teach flume in two crates by air freight. It took just one week to arrive in Galveston. The OCEN team had assembled the tank in a matter of days, following the documentation without needing the support offered by OMEY. Each module was sealed using the bolted flanges and solid silicone cord. No messy compounds were needed or time for seals cure.
Texas A&M were able to upgrade their teaching flume, although their budget and laboratory space was limited. Their lab now enables staff and students to run classes at 1:300th scale in regular, irregular and random wave conditions, with the option to experiment with recoding wave spectra.

